极悦注册
更多>>视频播放
更多>>客户见证
- 维信机械设备有限公司 黄总
我司是做PCB线路板湿制程水平机设备的厂家,从我司开厂以来,一直都是...详情
- 华通电脑有限公司 刘经理
极悦磁力泵是根据众多用户要求,在磁力泵的基础上吸取国外新技术,并经公...详情
- 协和电镀有限公司 肖总
我们做化学镀过滤是一种新型的金属表面处理技术,该技术以其工艺简便、节...详情
- 兴森快捷科技有限公司 工程部...
我司环保水处理与楼顶废气处理泵80%都是用的极悦的,一直以来运行稳定...详情
更多>>热销产品
- MVK-R-2006槽内立式过滤...
1、采用优质PPH/PVDF优质原材料,提升耐腐蚀能...
- MVK-L-2006槽内立式过滤...
1、采用优质PPH/PVDF优质原材料,提升耐腐蚀能...
- MVK-L-1002槽内立式过滤...
1、采用优质PPH/PVDF优质原材料,提升耐腐蚀能...
- MVF-40SK-25EF-4-...
1、采用优质PPH/PVDF优质原材料,提升耐腐蚀能...
- MVK-R-1003-FBEUG...
1、采用优质PPH/PVDF优质原材料,提升耐腐蚀能...
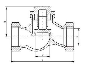
JKB卧式离心泵出口止回阀的作用与选型
【JKB卧式离心泵】出口止回阀的作用
JKB卧式离心泵出口的止回阀的作用就是防止出口管路中的液体倒流形成水锤造成泵内叶轮损伤。止回阀的安装与泵的多
少无关,止回阀主要为了在JKB卧式离心泵停止运行后,防止液体回流,使泵倒转,从而造成损坏泵的事故。
【JKB卧式离心泵】出口止回阀的安装
1、 旋启式止回阀一般安装在水平管道上:对于口径DN<80mm的止回阀,也可安装在垂直或向上倾斜的管道上。
2、直通式升降式止回阀应安装在水平管道上;立式升降式止回阀必须安装在垂直管道上,介质为自下而上流动。
3、由于止回阀容易损坏,因此,应靠近JKB卧式离心泵出口安装止回阀,在止回阀上部设有切断阀(一般用球阀或闸阀),方便检修。
4、为便于止回阀拆卸前泄压,对于止回阀本身不带放净阀的,应在止回阀与切断阀之间加装泄压用放净阀。
防止水力冲击对止回阀密封面损坏的保护措施
止回阀的设置,起到了防止物料倒流,避免泵叶轮遭受液击的作用。但就止回阀本身而言,设置不当,会造成水击所产生
的阀瓣对阀座的突然撞击,损及止回阀密封面。因此,应采取以几点保护措施。
1、对于泵出口设置>80mm的旋启式止回阀,应采用水平安装方式,以减弱阀瓣回座及产生的撞击。
2.对JKB卧式离心泵排出管路起点和终点压力较高管路,不允许设置旁路的,可采取以下措施:设置安全阀以代替旁路阀。
其作用与旁路阀相似。它设置在止回阀出口附近,当水击使压力升高时,可将一部分水放出以防止压力继续增高造成的损害。
【JKB卧式离心泵】止回阀的选型
1.为了防止介质逆流,在设备、装置和管道上都应安装止回阀。
2.一般在公称通经50mm的水平管道上都应选用立式升降止回阀。
3.直通式升降止回阀在水平管道和垂直管道上都可安装。
4.旋启式止回阀的安装位置不受限制,它可装在水平、垂直或倾斜的管线 上,如装在垂直管道上,介质流向要由下而上。
5.JKB卧式离心泵适用场合是低压大口径,而且安装场合受到限制。
6.球形止回阀适用于中低压管路,可以制成大口径。
-THE END -
版权东莞极悦泵业所有 如涉及版权问题请及时联系处理
立式泵丨离心泵丨磁力泵丨过滤机丨耐酸碱泵丨化工药液泵丨工业专用泵丨泵浦厂家丨极悦泵业
欢迎访问东莞极悦泵业(http://www.glzql.com/)




